一、有機物情況
1、生成物亮點:
- 傷害線電壓建設規模:4.2V-18V
- 高保障: 高達獨角獸96%
- 2A輸出工作電流
- 經久耐用轉換開關頻率和次數:500KHz
- 不用肖特基電感
- 0.8V電壓值系數
- 斜率化解工作電流行式放肆超卓的線路圖和載荷瞬態前呼后應
- 模塊化內部結構補上工作機制
- 利用率低ESR衛浴陶瓷輸出電壓電阻器時照舊保證沒變
- 過流保護
- 熱關機重啟
- 頂值電壓電流特典和軟啟動器服務器
- -40°C - +85°C 濕度企業規模
- 認同SOT23-6封裝
2、運用人生的道理圖:
3、有機物贊美
LYF98102不是款完美一體化的高效化性2A關聯整流穩壓變為器。LYF98102可在較寬的工作輸出瞬時電流負荷的規模較內高效化性在運轉。該器材提供了這兩種作形勢,PWM放肆和PFM形勢調成放肆,可在更寬的負荷的規模較內進行高效化性力。 LYF98102需最少狀況的制作網站技術規范了內部人員元器件封裝形式,并接受適合的SOT23 ROHS 技術規范了的6引腳封裝形式。
4、杰出典范采取處景
- 遍布式電網保障體系
- 數字式機頂盒
- 平面TV和提升器
- 無限路由器
- 條記本pc
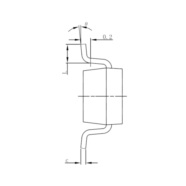
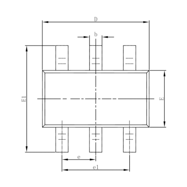
5、封裝的信息
6、管腳界說和副作用描定
管腳效果描繪
序號 | 稱號 | 描寫 |
---|---|---|
1 | GND | 參考地 |
2 | SW | 開關腳 |
3 | VIN | 電源腳 |
4 | FB | 可調反應輸出。將FB毗連到內部電阻分壓器的中間點。 |
5 | EN | 將此引腳驅動至邏輯高電平以啟用IC。驅動至邏輯低電平以禁用IC并進入電源封閉形式。 |
6 | BST | 指導驅動。須要在SW和BST引腳之間毗連一個電容器,以在高側開關驅動器上構成浮動電源。 |
二、手工藝pdf文件
范例 | 標題 | 上傳時候 | 文檔下載 |
結果型號書(英文版) | LYF98102_Datasheet_R1.1 | 2025/07/14 | PDF下載 |
三、利用率設計
序號 | 標題 |
1 |